-
容光.M
新成屋設計 10 坪2 房 1 廳 1 衛
引光入室.修改格局
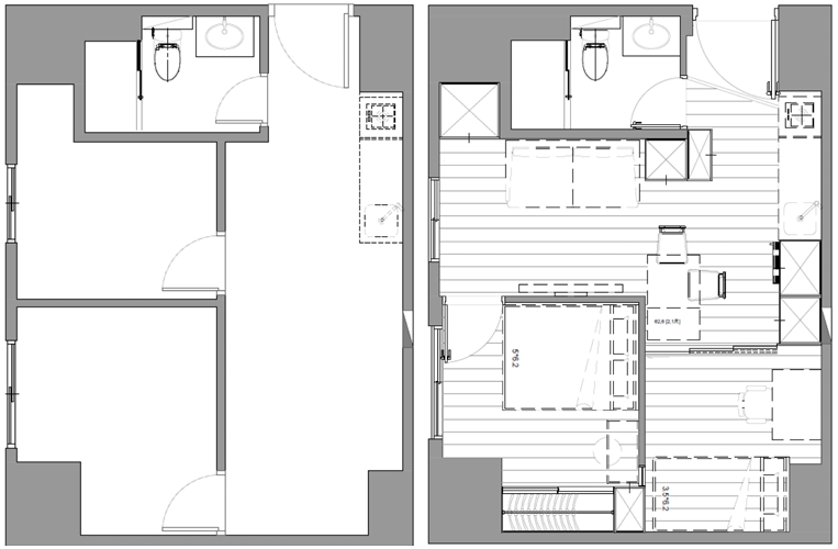
建商原有格局為 「暗廳明房」。最初屋主並未提出要調整動線, 但在討論過程中我們發現購屋動機來自窗外景致──「天氣好時可遠眺 101」。
儘管房型本身有限,窗外景觀卻是此案最大的賣點。因此我們提出一套 屋主從未想過的新格局設計。雖然電視牆至沙發背牆距離縮短約 25 公分,整體空間的壓迫感卻顯著降低,視覺通透度與採光表現同步提升。

- 屋主最大煩惱:建商原有管線
- 當要確認更動格局時,屋主最擔憂的點是:『那最醜的管線就會在客廳上方,有辦法修飾的好看嗎?』
- 透過弧形天花並結合冷氣回風口,弱化驟然降低的天花板壓迫感,也有引導視覺往窗外眺望的用意。
- 沙發背牆的畸零地則化整為零,讓系統櫃與牆面齊平,裡面可以放置行李箱、風扇與手持吸塵器等。

- 小宅越小則樓高越要計較
- 因為屋主希望樓高的優勢能盡量維持,但又希望客廳可以使用吊隱式冷氣,與冷氣廠商完整討論後,將吊隱式室內機藏在走入次臥的過道上,過道天花板結合了隱藏吊隱式室內機(含維修孔與線型出風口、次臥懸吊拉門軌道安裝與次臥壁掛冷氣安裝位置等功能,減少天花板壓低的面積,大幅度拉高整體天花板高度,且將原有廚具上方的包樑改成斜面,修飾抽油煙管之餘也有延長視覺感。
.jpeg)
- 每一個空間都不浪費
- 因為次臥兼書房功能,也跟屋主確認過玻璃隔屏無法隔音且有隱私的問題,如果不用木板封掉,則可以善用原有門洞增加主臥收納櫃功能並保持書房擁有自然採光,考量到床與衣櫃間要擺放化妝桌,將化妝桌旁的收納高櫃分為三等份,上方面向書房當作玩偶展示櫃,中間保留在主臥作化妝備品收納用,下方則轉至書房開啟,保存非常少使用的物品,當有需要時,移開書房的沙發床即可取用。
.jpeg)
- 隱藏門的小巧思
- 因為主臥房門隨著動線修改到窗邊,新作的隱藏門採內外表面滾塗水泥漆的方式施工,但因為油漆滾塗的房門經過使用後一定會留下髒汙等使用痕跡,因此建議屋主局部貼上美耐板,除了好清潔也是電視牆的點睛之筆。
.jpeg)
-
商品Q&A








